ห้องนอนเป็นพื้นที่ส่วนตัวที่สำคัญที่สุดในบ้าน การมีแบบแปลนห้องนอนที่ดีจึงเป็นจุดเริ่มต้นของการสร้างพื้นที่พักผ่อนที่ดี ไม่เพียงแต่ช่วยให้การใช้งานสะดวกสบาย แต่ยังส่งเสริมคุณภาพการนอนหลับและการใช้ชีวิตที่ดีอีกด้วย บทความนี้ จะพาไปสำรวจ 10 ดีไซน์แปลนห้องนอนที่ได้รับความนิยม ซึ่งถูกออกแบบมาเพื่อตอบโจทย์ไลฟ์สไตล์ที่หลากหลาย พร้อมให้แนวทางในการจัดสรรพื้นที่อย่างมีประสิทธิภาพและสวยงามลงตัว เหมาะสำหรับผู้ที่กำลังวางแผนสร้างบ้าน
10 ดีไซน์แบบแปลนห้องนอน
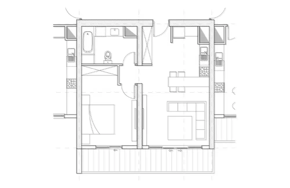
การจัดวางผังหรือแปลนห้องนอนที่ดีควรคำนึงถึงทิศทางลม แสงแดด และลำดับการเข้าถึงพื้นที่ใช้สอยต่าง ๆ ตั้งแต่โซนพักผ่อนไปจนถึงส่วนแต่งตัวและห้องน้ำ การออกแบบที่ผ่านการคิดอย่างรอบคอบจะช่วยให้ทุกตารางเมตรถูกใช้งานอย่างคุ้มค่าสูงสุด เราจึงได้รวบรวม 10 ไอเดียแบบแปลนห้องนอนที่น่าสนใจมาให้พิจารณา
1. แบบแปลนห้องนอนแนวยาวพร้อมห้องน้ำในตัว
สำหรับพื้นที่ที่มีลักษณะแคบและยาว การจัดวางแปลนห้องนอนรูปแบบนี้จะช่วยแบ่งพื้นที่ได้อย่างลงตัว โดยมักจะวางเตียงนอนไว้ส่วนในสุดเพื่อความเป็นส่วนตัว ถัดมาเป็นส่วนแต่งตัว และปิดท้ายด้วยห้องน้ำที่อยู่ใกล้กับประตูทางเข้า ช่วยให้การไหลเวียนของอากาศและการใช้งานต่อเนื่องเป็นไปอย่างสะดวก การออกแบบเช่นนี้ยังช่วยลดปัญหาเรื่องความชื้นจากห้องน้ำมารบกวนโซนพักผ่อนโดยตรงอีกด้วย เป็นแปลนที่พบได้บ่อยในงาน เขียนแบบบ้านสมัยใหม่
2. แบบแปลนแบ่งสัดส่วนชัดเจน 4 โซน
แบบแปลนห้องนอนที่มีการแบ่งพื้นที่เป็น 4 โซนหลัก ได้แก่ โซนนอนหลับ โซนแต่งตัว โซนนั่งเล่น และโซนห้องน้ำ จะช่วยสร้างความเป็นระเบียบและทำให้ห้องดูมีมิติมากขึ้น การจัดวางอาจใช้ผนังเบา ฉากกั้น หรือการเล่นระดับพื้นเพื่อแยกแต่ละส่วนออกจากกันอย่างชัดเจน เหมาะสำหรับห้องนอนขนาดกลางถึงใหญ่ที่ต้องการฟังก์ชันครบครันและเป็นสัดส่วน ทำให้ผู้อยู่อาศัยสามารถใช้งานแต่ละพื้นที่ได้โดยไม่รบกวนกัน
3. แบบแปลนห้องนอนพร้อมพื้นที่ทำงาน
ในยุคที่การทำงานที่บ้านกลายเป็นเรื่องปกติ แปลนห้องนอนที่มีมุมทำงานจึงได้รับความนิยมอย่างสูง การออกแบบที่ดีจะจัดวางโต๊ะทำงานไว้ในตำแหน่งที่ได้รับแสงธรรมชาติเพียงพอ เช่น ริมหน้าต่าง และควรอยู่ห่างจากเตียงนอนเพื่อแยกโหมดการทำงานและการพักผ่อนออกจากกันอย่างชัดเจน การมีพื้นที่ทำงานที่เป็นสัดส่วนในห้องนอนจะช่วยส่งเสริมสมาธิและประสิทธิภาพในการทำงานโดยไม่กระทบต่อบรรยากาศการพักผ่อน
4. แบบแปลนที่เน้นมุมนั่งเล่นพักผ่อน
การเพิ่มมุมนั่งเล่นเข้ามาในแบบแปลนห้องนอนจะช่วยสร้างพื้นที่สำหรับกิจกรรมผ่อนคลายนอกเหนือจากการนอน เช่น การอ่านหนังสือ หรือการนั่งจิบกาแฟยามเช้า โดยมักจะจัดวางโซฟาขนาดเล็กหรืออาร์มแชร์ไว้บริเวณริมหน้าต่างหรือมุมห้องที่เงียบสงบ เพื่อให้เป็นโซนพักผ่อนสายตาและเปลี่ยนอิริยาบถ แปลนลักษณะนี้ช่วยเพิ่มความรู้สึกอบอุ่นและทำให้ห้องนอนเป็นมากกว่าแค่พื้นที่สำหรับนอนหลับ แต่เป็นพื้นที่แห่งการพักผ่อนอย่างแท้จริง
5. แบบแปลนพร้อมห้องแต่งตัวแบบ Walk-in Closet
Walk-in Closet ถือเป็นฟังก์ชันที่หลายคนใฝ่ฝัน การออกแบบแปลนห้องนอนให้มีพื้นที่นี้เชื่อมต่อโดยตรงจะช่วยเพิ่มความสะดวกสบายและทำให้การจัดเก็บเสื้อผ้าเป็นระเบียบยิ่งขึ้น ตำแหน่งของ Walk-in Closet มักจะอยู่ระหว่างห้องนอนและห้องน้ำเพื่อสร้างลำดับการใช้งานที่ต่อเนื่อง การมีห้องแต่งตัวโดยเฉพาะยังช่วยลดปัญหาฝุ่นจากเสื้อผ้าในโซนพักผ่อน ซึ่งทีมงานรับออกแบบบ้านของเรามักจะแนะนำแปลนลักษณะนี้เสมอ
6. แบบแปลนสำหรับห้องนอนขนาดใหญ่พิเศษ
สำหรับห้องนอนขนาดใหญ่หรือ Master Bedroom การจัดวางแบบแปลนห้องนอนสามารถทำได้อย่างอิสระมากขึ้น อาจเพิ่มฟังก์ชันพิเศษ เช่น เคาน์เตอร์บาร์ขนาดเล็ก มุมออกกำลังกาย หรือพื้นที่นั่งเล่นขนาดใหญ่เทียบเท่าห้องรับแขก การออกแบบผังสำหรับห้องขนาดใหญ่ต้องคำนึงถึงการสร้างจุดนำสายตาและความสมดุลของพื้นที่ว่าง เพื่อไม่ให้ห้องดูโล่งจนเกินไป ซึ่งมักพบได้ในแบบบ้าน 4 ชั้น ที่มีพื้นที่ใช้สอยกว้างขวาง
7. แบบแปลนห้องนอนแนวยาวพร้อมระเบียงชมวิว
การเชื่อมต่อพื้นที่ภายในห้องนอนกับระเบียงภายนอกผ่านประตูกระจกบานใหญ่ เป็นการออกแบบแปลนห้องนอนที่ช่วยเปิดรับแสงธรรมชาติและทิวทัศน์ได้อย่างเต็มที่ ทำให้ห้องดูโปร่ง โล่ง และกว้างขวางขึ้น ระเบียงยังสามารถใช้เป็นพื้นที่นั่งเล่นพักผ่อนส่วนตัวได้อีกด้วย การวางตำแหน่งเตียงให้หันหน้าออกสู่ระเบียงจะทำให้ผู้อยู่อาศัยสามารถตื่นมาพร้อมกับวิวที่สวยงามได้ในทุก ๆ วัน เป็นดีไซน์ที่เน้นการสร้างสุนทรียภาพในการอยู่อาศัย
8. แบบแปลนที่เน้นห้องน้ำหรูหราแบบเปิดโล่ง
เทรนด์การออกแบบที่กำลังมาแรงคือแบบแปลนห้องนอนที่รวมห้องน้ำแบบเปิดโล่ง โดยอาจใช้เพียงผนังกระจกหรือไม่มีผนังกั้นระหว่างโซนอ่างอาบน้ำกับพื้นที่นอนเลย เพื่อสร้างความรู้สึกหรูหราและเซ็กซี่เหมือนพักในรีสอร์ต อย่างไรก็ตาม การออกแบบลักษณะนี้จำเป็นต้องมีระบบระบายอากาศที่ดีเยี่ยมเพื่อจัดการความชื้น และเหมาะสำหรับผู้ที่ต้องการความแปลกใหม่และไม่กังวลเรื่องความเป็นส่วนตัวมากนัก
9. แบบแปลนห้องน้ำแยกฟังก์ชันการใช้งาน
ตรงข้ามกับแบบเปิดโล่งแปลนห้องนอนที่มีห้องน้ำแบบแยกฟังก์ชันจะเน้นความเป็นส่วนตัวและประสิทธิภาพการใช้งานสูงสุด โดยจะแยกส่วนโถสุขภัณฑ์ พื้นที่อาบน้ำ และเคาน์เตอร์อ่างล้างหน้าออกจากกันอย่างชัดเจน ทำให้สามารถใช้งานพร้อมกันได้ 2-3 คนในเวลาเร่งด่วน เหมาะสำหรับครอบครัว หรือบ้านพักอาศัยที่มีผู้อยู่หลายคน เช่นเดียวกับที่พบในแบบบ้าน 3 ชั้น ที่ออกแบบเพื่อรองรับสมาชิกหลายรุ่น
10. แบบแปลนมาตรฐานเรียบง่ายและใช้งานได้จริง
สุดท้ายคือแบบแปลนห้องนอนมาตรฐานที่เน้นความเรียบง่ายและประโยชน์ใช้สอยสูงสุด โดยจัดวางเตียงไว้ตรงข้ามกับประตูทางเข้า มีตู้เสื้อผ้าอยู่ด้านข้าง และมีพื้นที่ว่างรอบเตียงเพียงพอสำหรับการสัญจรสะดวก แม้จะดูเรียบง่ายแต่แปลนลักษณะนี้สามารถปรับใช้ได้กับห้องนอนทุกขนาดและตอบโจทย์การใช้งานพื้นฐานได้อย่างครบถ้วน ทำให้เป็นแปลนที่คลาสสิกและได้รับความนิยมอยู่เสมอ
สรุป ดีไซน์แบบแปลนห้องนอน
การเลือกแบบแปลนห้องนอนที่เหมาะสมไม่เพียงแต่จะช่วยจัดสรรพื้นที่ให้สวยงามน่าอยู่เท่านั้น แต่ยังส่งผลโดยตรงต่อคุณภาพชีวิตและความสะดวกสบายในการใช้งานในระยะยาวอีกด้วย การวางแผนผังที่ดีคือหัวใจสำคัญของการออกแบบสถาปัตยกรรม สำหรับผู้ที่ต้องการคำปรึกษาเพิ่มเติมหรือสนใจบริการออกแบบบ้านที่ใส่ใจในทุกรายละเอียด Morebrother ด้วยประสบการณ์และความเชี่ยวชาญ พร้อมที่จะสร้างสรรค์พื้นที่พักผ่อนที่ดีที่สุดให้เป็นจริงสำหรับทุกคน







